
Sketches & Hand Drafting
Sketches & Hand Drafting
about.
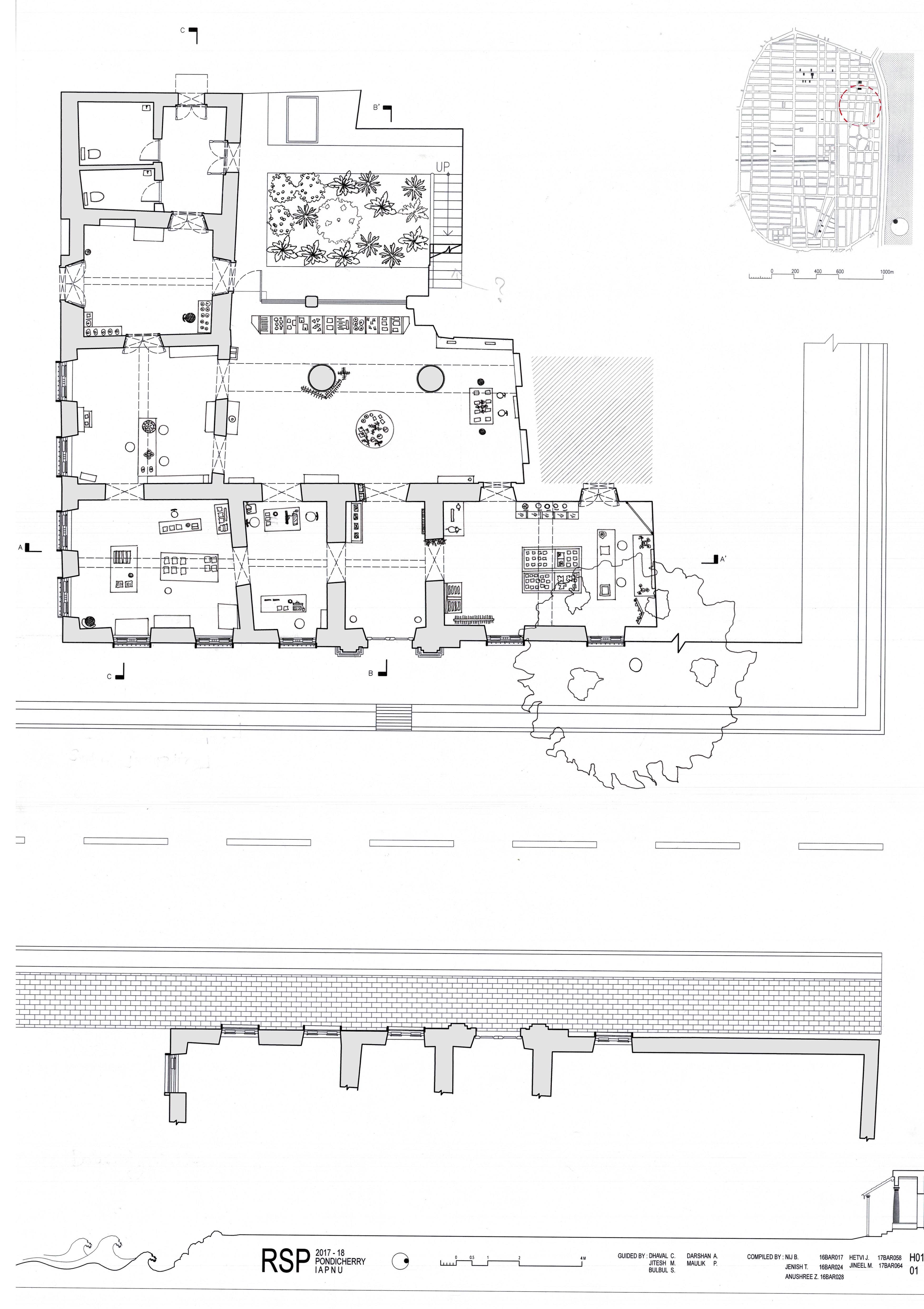
Sketching is how I think - visually, quickly, and with intent. Each line captures an idea in its earliest, most intuitive form. The works here include both spontaneous concept sketches and detailed hand drafted drawings, showing how I develop and refine ideas. This hands on process helps me connect abstract thinking with real world applications, turning imagination into direction.









about.
Sketching is how I think - visually, quickly, and with intent. Each line captures an idea in its earliest, most intuitive form. The works here include both spontaneous concept sketches and detailed hand drafted drawings, showing how I develop and refine ideas. This hands on process helps me connect abstract thinking with real world applications, turning imagination into direction.
more to explore.
INDUSTRY:
MARKETING
CLIENT:
SCENE CRAFT
YEAR:
2024
EXPERIENCE:
SCENES




